Así será el nuevo Albéniz

Urbanismo da luz verde al proyecto ejecutivo, valorado en casi 3,4 millones de euros

Cultura exige un análisis arqueológico previo en la zona donde hay varias edificaciones que serán demolidas

Infografía del diseño exterior del Neoalbéniz.
Infografía del diseño exterior del Neoalbéniz.
Sebastián Sánchez

Málaga, 11 de junio 2020 - 19:44

La apuesta del alcalde de Málaga, Francisco de la Torre, por ampliar el antiguo cine Albéniz y potenciar los equipamientos culturales que sirven para acoger el Festival de Cine, avanza. El Consejo de Administración de Urbanismo ha dado este jueves luz verde al proyecto de ejecución de esta edificación, bautizada como Neoalbéniz.

De acuerdo con los detalles técnicos de la intervención, el coste económico de la obra rondará los 3,4 millones de euros, mientras que el plazo necesario para su materialización será de unos 14 meses. Este paso se da casi dos años después de que la iniciativa fuese pues sobre la mesa oficialmente.

En cualquier caso, el desarrollo de la propuesta de actuación queda condicionada por parte de la Consejería de Cultura a los resultados de una actividad de análisis arqueológico de las estructuras de los inmuebles que tendrán que ser demolidos para dar cabida a la ampliación. Con ello se busca "comprobar la existencia o ausencia de elementos emergentes pertenecientes al sistema defensivo medieval".

De acuerdo con el informe de Cultura, estos resultados "condicionarán la viabilidad de la propuesta de demolición y determinarán as medidas de protección que se deberán implementar, en su caso, para garantizar la conservación de tales elementos”.

Con la actuación prevista se busca, además de disponer de nuevas superficies culturales, de recuperar la falda de la Alcazaba como parque urbano ligado a los restos arqueológicos y al propio uso del edificio. Una de las particularidades de la actuación es que se piensa en usar la fachada del inmueble en espacio para la proyección. Otro de los objetivos perseguidos es el de "dignificar el espacio y recuperándolo para el uso ciudadano".

Fachada trasera del nuevo edificio y reurbanización hacia la Alcazaba.
Fachada trasera del nuevo edificio y reurbanización hacia la Alcazaba.

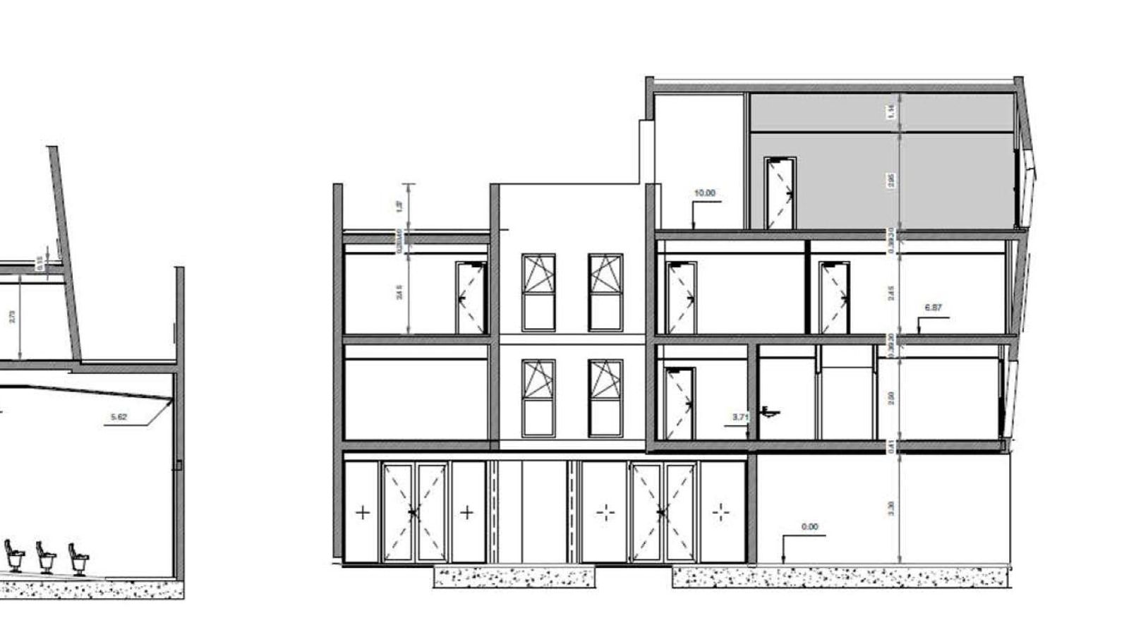
La propuesta se resuelve con un volumen de carácter tectónico, con predominio del macizo sobre el hueco. El uso propuesto para el equipamiento cultural es una prolongación del propio cine Albéniz, incluyendo la creación de dos salas de imagen con capacidad para más de 200 personas. La estructura del edificio se resuelve en hormigón armado, con una estructura de muros que resuelven el espacio mediante cajas colgadas en la zona de la medianera sur con los restos arqueológicos.

Secuencia de Planos sobre el proyecto.
Secuencia de Planos sobre el proyecto.

La altura del conjunto es de B+3, no agotando la edificabilidad otorgada de B+5, para respetar las fachadas traseras existentes, que, aun siendo medianeras, cuentan con huecos abiertos hacia la Alcazaba. También se respetan los patios de luces existentes, que, aunque pertenecen a las fincas del proyecto, se ha visto conveniente mantenerlos para evitar conflictos con los colindantes.

Planos del interior del Neoalbéniz.
Planos del interior del Neoalbéniz.

Este nuevo hábitat audiovisual, bajo la gestión de la sociedad municipal Festival de Málaga, plantea también una zona de promoción empresarial, con micro contenedores industriales en los que se pueden instalar distintas empresas del sector para ofertar sus servicios de modo conjunto. La sede de la Málaga Film Office como oficina prescriptora del sector audiovisual malagueño estará en este edificio.

stats